Piso 1

C.S. Melgaço | 2011-2012

DescriçãoFicha técnica

 

Objectivo
Reorganização | remodelação do setor de Internamento para instalação de uma Unidade de Cuidados Continuados de Convalescença, com o número máximo de camas possível e sem fazer recurso a ampliações e a alterações exteriores da imagem e da volumetria do Centro de Saúde. A classificação da tipologia da UCC (média ou longa duração) fica dependente das necessidades definidas pela Rede Nacional de Cuidados Continuados Integrados (RNCCI).
 
Intervenção
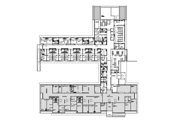
A área de trabalho estabelecida para o piso 1 foi de 1178 m² e para o piso 0 de 593 m². As áreas técnicas e garagem (170 m²) foram excluídas, apesar de terem sido feitas intervenções pontuais de reparação e conservação.
Para verificação do RSECE, no âmbito deste projeto ficaram também incluídos: o tratamento térmico das fachadas e cobertura; a substituíção e redesenho dos caixilhos exteriores das alas intervencionadas.
 
Organização funcional | volumetria
O novo projecto consegue garantir a instalação de 10 quartos duplos e 9 simples, perfazendo o total de 29 camas. Cada quarto é dotado de uma instalação sanitária de apoio e de um armário individual /por cama, garantindo as dimensões mínimas exigidas. Os quartos duplos têm ainda um lavabo de apoio.
O restante programa funcional ― solicitado nos programas tipo das Unidades de Cuidados Continuados e na legislação específica referente ― foi condicionado pela localização priveligiada dos módulos “quarto” no projecto, pelo ritmo estrutural e de fenestrações existente, e pela coluna de acessos (escada e elevador) ao piso 0. Inclui sala de estar | convívio, refeitório com copa, posto de enfermagem, sala de observação | tratamentos, banho assistido, arrumo de material de limpeza, lavagem /desinfecção de material clínico e tratamento de arrastadeiras, gabiente médico | enfermagem, gabinete de terapia da fala, sala multifunções, electrotereapia e ginásio.