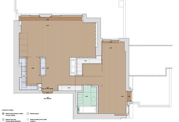
Planta Apt

Apartamento M. Bay | 2007

DescriçãoFicha técnica

 

PROJETO EM PARCERIA COM PEDRO LEAL
Objectivo
Remodelação e renovação de todas as infraestruturas de um apartamento T2 da década de 80 situado no 3º andar de um edifício da rua do Molhe, na Foz do Porto.
Programa
O cliente, de origem estrangeira, pretendeu áreas generosas na sala e quarto, bons armários roupeiros e um espaço de trabalho ligado à zona de dormir. Mostrou também interesse em manter a zona de lareira que equipava o apartamento.
Existente
Apesar de possuir um extenso terraço orientado a Norte e Poente, a organização original do apartamento estava orientada para dentro: distribuía os espaços da maneira possível para que a fracção pudesse ser vendida como “duas assoalhadas”, tinha más áreas em todos os compartimentos habitáveis, uma cozinha em corredor e uma lavandaria que ocupava a área mais nobre da fachada, de onde se podia usufruir da melhor vista de mar do fogo.
Critérios de intervenção | organização funcional
O projecto procurou estender a área social do apartamento para o terraço, tanto visualmente como no convite ao mais frequente usufruto deste, reclamando também para a sala a vista que estava confinada à lavandaria.
A redistribuição dos espaços utilizou o volume do recuperador de calor, substituto da anterior lareira, como elemento compositivo principal. Tendo uma localização central na planta, imposta pelas infraestruturas do prédio, o volume separou naturalmente os espaços sociais da área íntima. A flexibilização dos espaços foi conseguida por recurso a painéis de correr, sendo utilizados tanto para fechar compartimentos (cozinha e instalação sanitária) como para separar zonas (área de trabalho | quarto | quarto de vestir) ou definir espaços temporários (hall de entrada).